Project Details

Address: 105 NE 40th St Seattle WA 98105
Square Footage: 2100
Pricing:

Beds/Baths: 3/3.5
Status: Sold

8 + 10 =

Clean, simple, modern and Green. This is one high performing home close to everything!

VITALS:

  • Approximately 2100sf. of living space
  • 2-car carport
  • 3 bedrooms
  • 5 baths
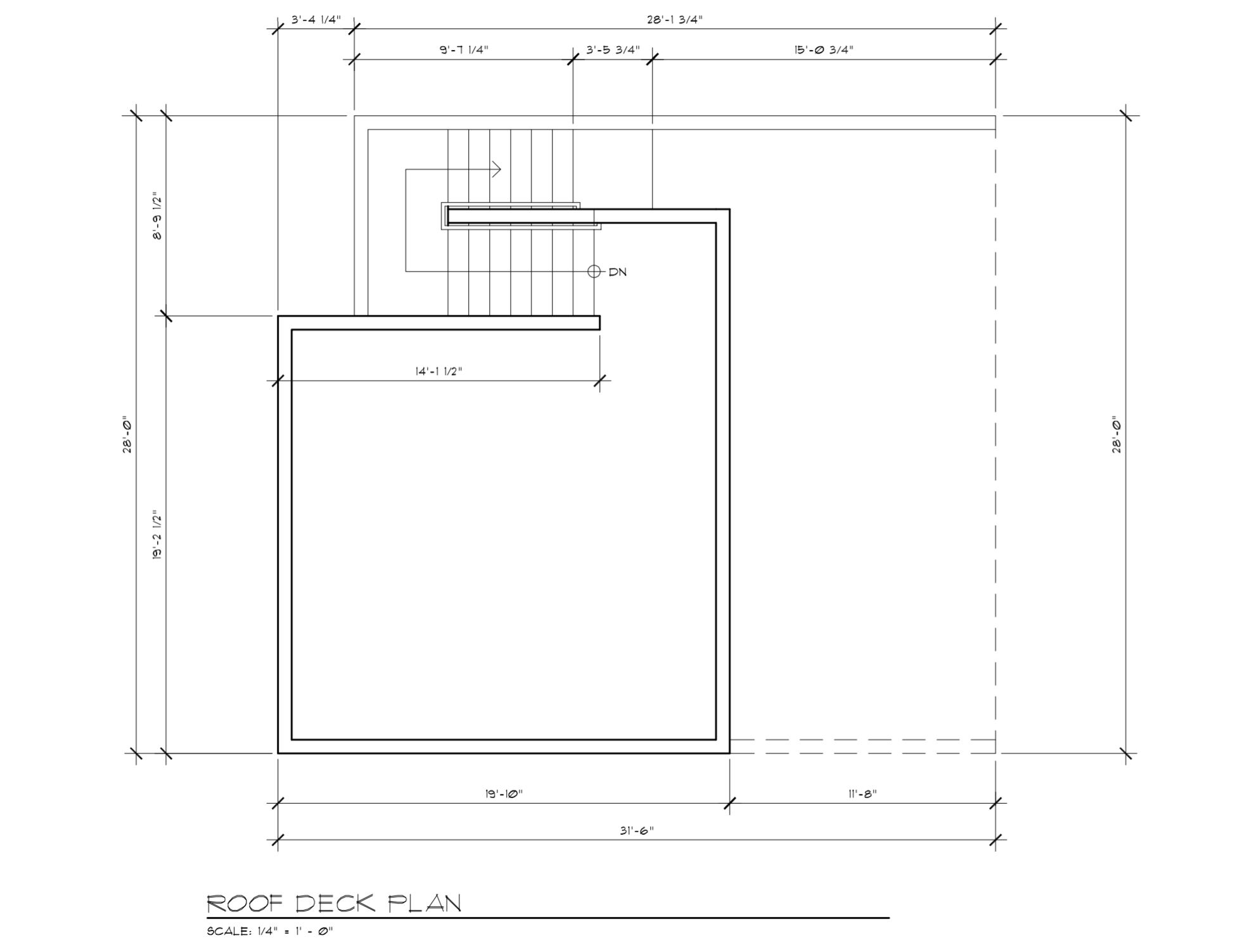
  • Roof top deck

HEALTHY-SUSTAINABLE- LIVABLE

  • Livable Plan Designed by Array Architects
  • Laundry Room on Bedroom level
  • Luxurious Master Suite w/5-piece master bath
  • Energy Efficient, Heat Pump Ductless Heating/AC Units
  • Washington Made, Custom Cabinetry
  • Solid Surface Countertops throughout
  • FSC Certified Hardwood floors
  • Polish Concrete Floors
  • Recycled Content Porcelain Tile
  • Interior wall and floor insulation for super quite livability
  • Thoughtfully designed finishes
  • Views from the space needled to the Cascade Mountains
  • 2-car covered parking

ENERGY EFFICIENT

  • LED light fixtures and bulbs
  • Uber efficient heat pump water heater
  • Energy Star rated Bosch Appliances
  • Triple pane low-e Energy Efficient Windows.
  • Super insulated including 8-inch, Double 2×4 exterior walls packed with blown in insulation

HIGH PERFORMANCE

  • Targeting 5-star Built Green, 3rd party verified
  • Built Smart Green by nwBuilt – Super insulated and air sealed building envelope
  • Tremco Envirodi, Fluid Appliance Weather Barrier
  • Prewired for Solar PV panels
  • 40-amp outlet for electric car charging
  • Heating Recovery Ventilator (HRV) for better indoor air quality
  • WaterSense certified plumbing fixtures

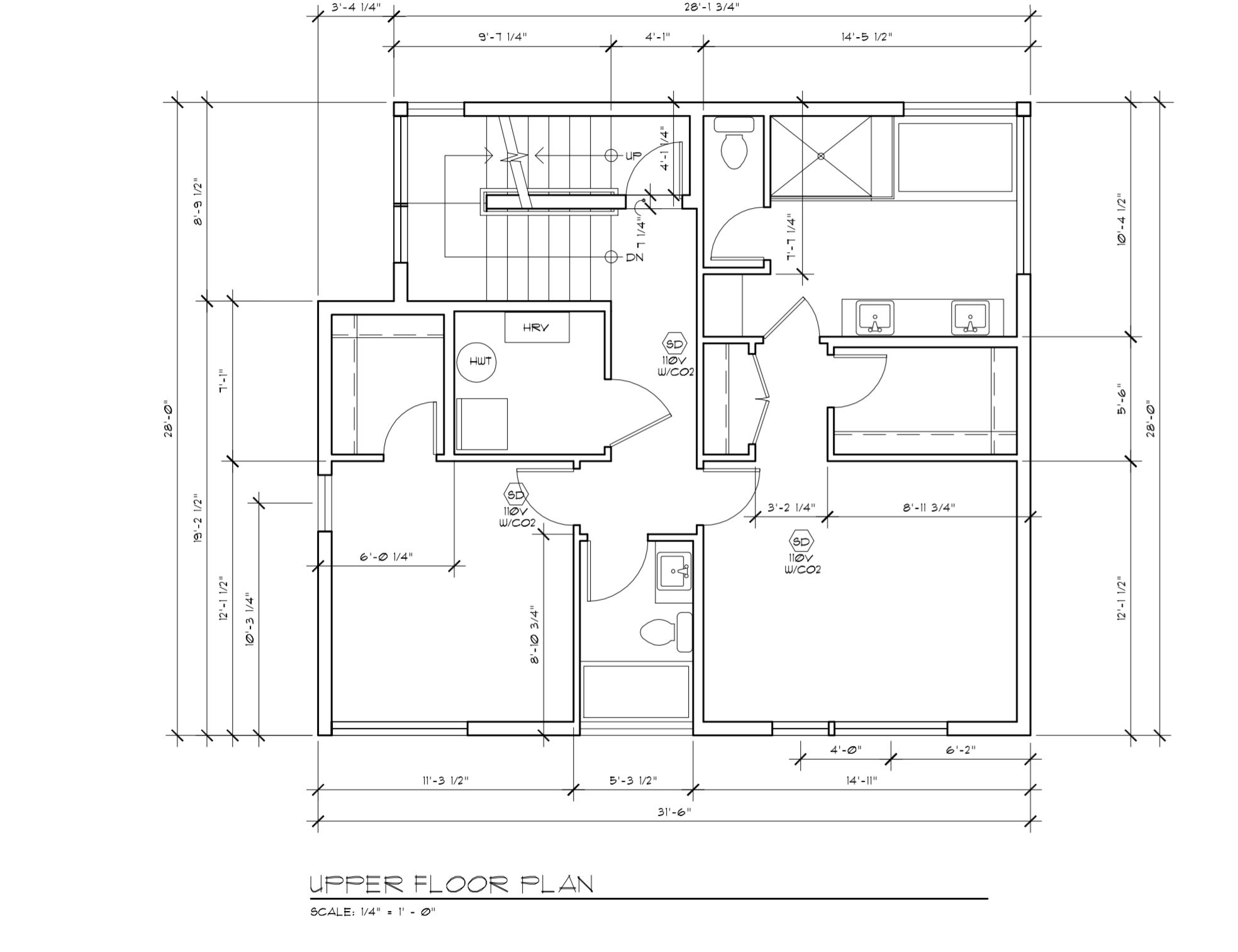
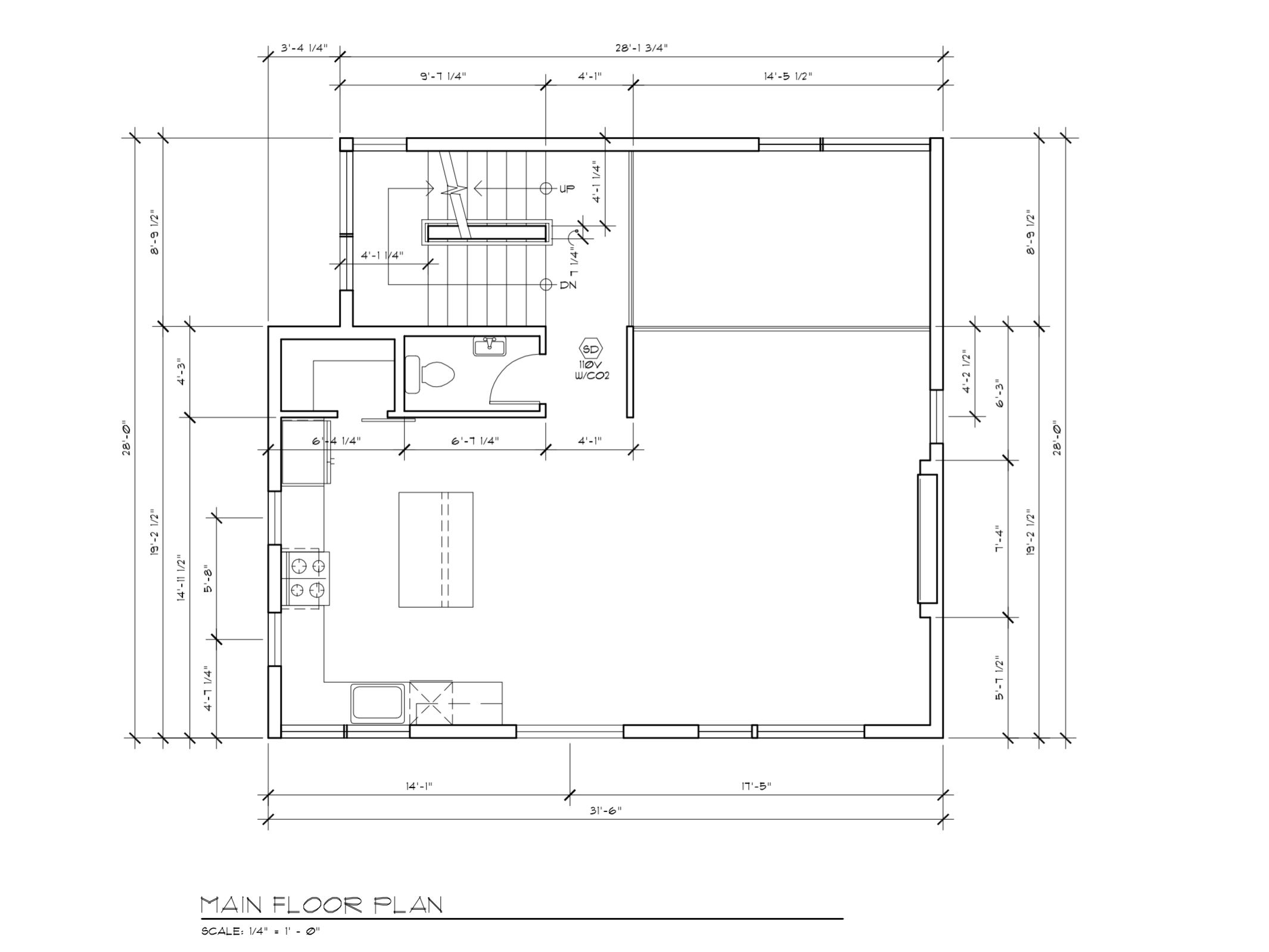
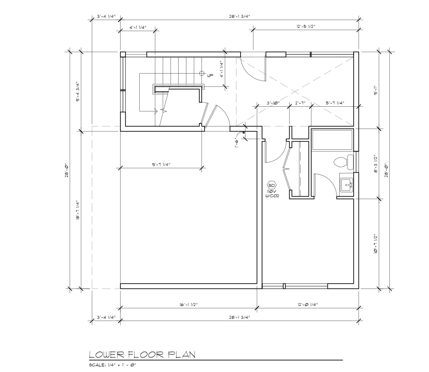
Floor Plans

Location