Landsby: Phase 4A Home
8559 Evanston Ave A Seattle WA 98103

Landsby is community of 12 separate properties on four lots, located in the Greenwood area of Seattle

SOLD

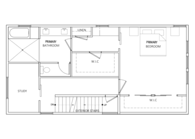
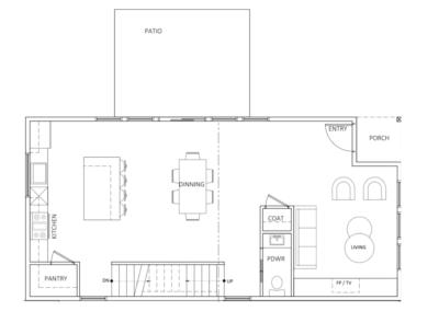
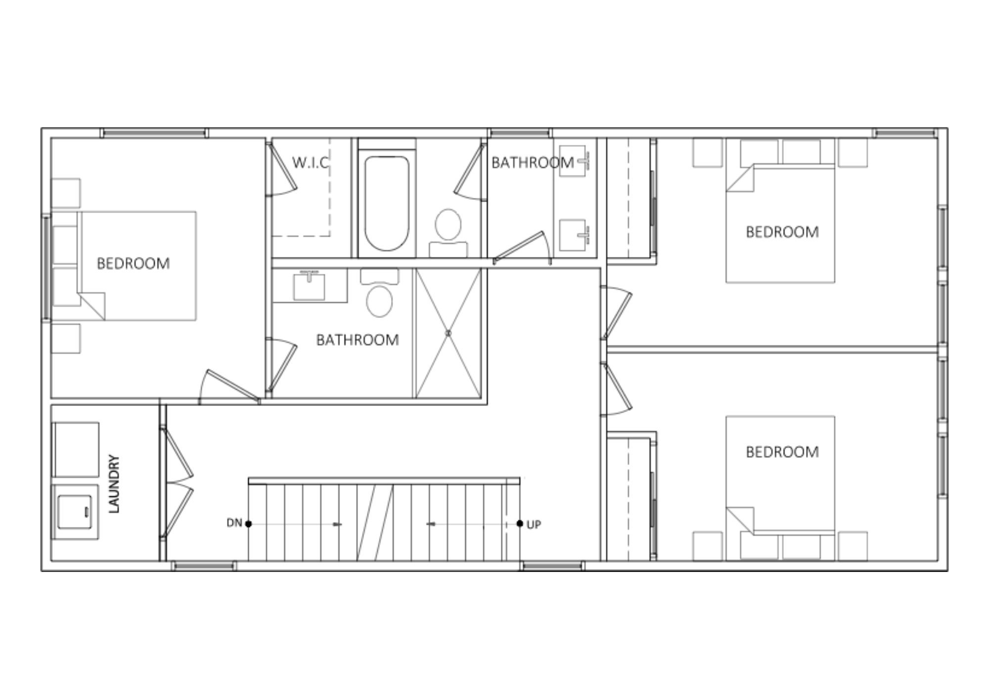
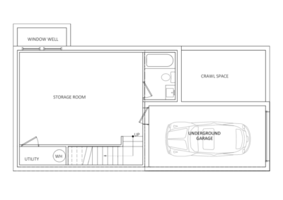
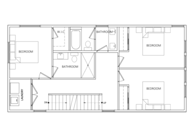
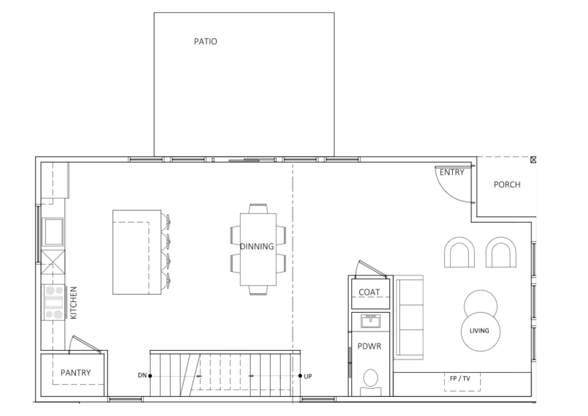
4

Bedrooms

4.5

Bathrooms

2,900

Total SF

TBD

Pricing

Overview

Introducing the Landsby community in Seattle’s Greenwood neighborhood

These Scandinavian-inspired homes are built with nwBuilt’s Smart Green approach, utilizing innovative materials and design for efficient homes. The Landsby community is made up of several unique and thoughtfully designed floor plans with flexible living spaces, large windows allowing for ample light, and garages in most homes. Greenwood offers the perfect mix of urban and suburban life with plenty of shopping, restaurants, and coffee shops in the neighborhood as well as parks and highly-rated schools. The Landsby community is situated across from Greenwood Park, which includes a “game garden”, P-Patch and BBQ picnic areas.

Contact us about Danskehus

3 + 7 =

Contact us about Danskehus

1 + 11 =

Bryan Loe, Senior Broker
206-406-5477
bloe@windermere.com
homedocket.com

John Cowan, Senior Broker
206-422-8741
jcowan@windermere.com
homedocket.com

Map

Title Address Description
3635 Densmore Ave N, Seattle, WA 98103, USA

Contact

8 + 14 =