Project Details

Address: 4216 Thackery Pl NE
Square Footage: 3062
Pricing:

Beds/Baths: 5/3.5
Status: PreSale Opportunity

Contact us about Danskehus

6 + 10 =

4216 Thackery Pl NE

Velkomen to Danskehus! Inspired by a recent trip to Denmark, this home features modern Scandinavian styling conveniently located in Wallingford, one of the most highly coveted Seattle neighborhoods. Refined open great-room floor plan w/ an envious gourmet kitchen designed for indoor/outdoor entertaining. Relax in style in your private backyard or escape to an unrivalled top floor rec room leading to a covered year-round heated outdoor living with amazing lake and city views; plumbed and ready to add your outdoor kitchen.

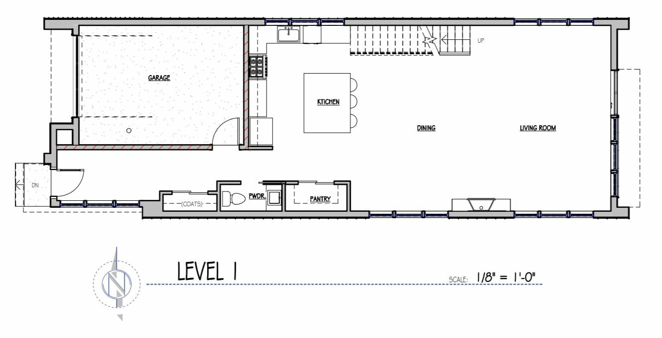
Floor Plans

Take a Virtual Tour

Location